Мира-2

ЖК 'Мира 2' - находится на пересечении Московского проспекта и проспекта Архитектора Алешина в минутной пешей доступности к станции метро «Тракторный завод» 🌳⠀✨Жилой комплекс 'Мира 2'- состоит из двадцати пяти 9 этажных кирпичных домов. Сочетание высокого качества строительства, удачного расположения, высококлассного сервиса и доступной цены 🏫⠀🔷Класс: эконом👌🔷25 домов в составе комплекса;🔷 кирпичная технология строительства;🔷красочное оформление фасадов.🔷Застройщик: АО ' Жилстрой -1'🔷ЖК «Мира-2» представлен удобными одно-, двух- и трехкомнатными квартирами. Планировки квартир выполнены максимально комфортно, с учетом важных факторов эргономики. Площадь жилья варьируется от⠀🔷 Сервис:🔺 наземный и гостевой паркинги;🔺 детские и спортивные площадки;🔺 зоны для отдыха;🔺озеленение придомовой территории;⠀🔷Расположение🔺1 минута к станции метро «Тракторный завод»;🔺4 минуты к Центральной библиотеке им. Чехова;🔺10 минут к скверу «ДК ХТЗ»;🔺11 минут к школе № 80;🔺4 минуты езды к рынку «ХТЗ
Об'єкти в цьому ЖК
Ціна: 37 000 $
ID 213-149-043
Ціна: 40 000 €
ID 213-166-822
Ціна: 25 000 $
ID 213-169-248
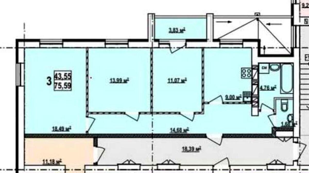
Ціна: 79 000 $
ID 213-194-372
Ціна: 69 000 $
ID 213-210-934































