Миру вул., 31 (№ 213-223-837)

Ціна: 39 500 $
Характеристики
| Ціна: | 39 500 $ |
|---|---|
| № об'єкта: | 213-223-837 |
| Кімнат: | 3 розд |
| Поверх: | 9 / 9 ліфт |
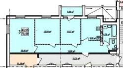
| Площа: | 76 / 43 / 9 м2 |
| Санвузол: | 1 роздільний |
| Балкон: | лоджія |
| ЖК Харькова: | ЖК Мира-3 |
| Ремонт : | строительное |
| Год ремонта: | |
| Госпрограма : | єОселя и єВiдновлення |
| Додатково: | новобудова |
Адреса: Харківська, Харків, Індустріальний, ХТЗ, Мира ул., 31, м. Тракторний завод
Продам 3-кімнатну квартиру в ЖК Миру 2, вул. Миру, 31, біля метро Тракторний завод.
Квартира розташована на 9 поверсі 9-ти поверхового будинку, є можливість зробити дворівневу квартиру за рахунок викупу технічного поверху.
Планування: три окремі кімнати, окрема кухня, роздільний санвузол.
Будинок цегляний, утеплений пінополістиролом, висота стелі – 2,8 м.
Облаштована при домова територія.
Загальна площа – 76 м²







