В продаже 3 - комнатная квартира в ЖК Мира - 2 Тракторный завод свечка (№ 213-194-372)

Ціна: 79 000 $
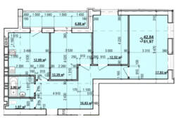
Характеристики
| Ціна: | 79 000 $ |
|---|---|
| № об'єкта: | 213-194-372 |
| Кімнат: | 3 розд |
| Поверх: | 3 / 9 ліфт |
| Площа: | 83 / - / 13 м2 |
| Санвузол: | 2 сумісний |
| Балкон: | лоджія |
| ЖК Харькова: | ЖК Мира -2 ( м. ХТЗ) |
| Ремонт : | частичный ремонт |
| Год ремонта: | |
| Додатково: | новобудова |
Адреса: Харківська, Харків, Індустріальний, ХТЗ, Героев Харькова пр. (Московский пр.), 268, м. Тракторний завод
Просторный коридор. большая кухня, три отдельные комнаты. 2 с/узла, большая лоджия 3,4 м2 . В квартире незаконченный ремонт, но жить можно. Теплый пол в ванной и входной зоне. Установлены счетчики тепла, воды.


















