Сокольники

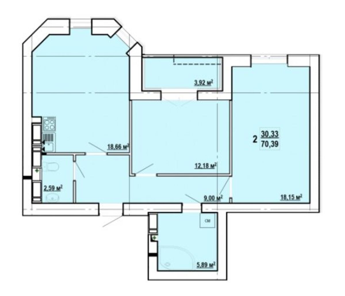
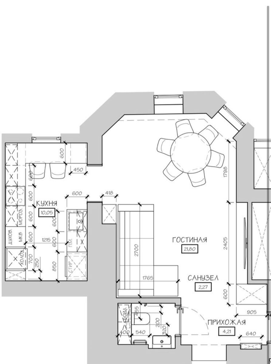
ЖК Сокольники расположен в престижном районе г. Харькова по ул. Профессорская, 30 М. Ботанический Сад🏫⠀✅Жилой комплекс расположен в экологически чистом и тихом центре города.⠀🔴Застройщик: Жилстрой 1⠀🔴Начало строительства - 2017 год, сдача в эксплуатацию - 2020 год.⠀🔴Класс: бизнесс⠀🔴Технология строительства: кирпичная⠀✅ЖК Сокольники представляет собой 4 дома, состоящих из 8 секций, которые формируют строгую организацию внешних границ территории и внутреннее пространство по законам классической композиции.⠀🔴В жилом комплексе в продаже 1-3 комнатные квартиры: 🔺1-комнатные 40,5 - 46,4 м.кв. 🔻2-комантные 61,9 - 77,2 м.кв. 🔺3-комнатные 97,8 м.кв.⠀🔴Цена от: 16000 грн/м2 (≈ 575.54$)⠀🔴Строительная компания реализовала здесь закрытый паркинг на большое количество машин. Для взрослых поставили лавочки в тени деревьев. Дети смогут играть на площадках с качелями из безопасных материалов или заниматься на спортплощадках.⠀🔴Продажа квартир ЖК Сокольники осуществляется со 2 этажа.Предусмотрено коммерческие помещения⠀🔴Девелопер заранее провел в помещениях черновые работы.⠀⠀✅Развитая инфраструктура: неподалеку пролегают маршруты троллейбуса и автобусов, станция метро «Ботанический сад» находится в трех километрах. В непосредственной близости находится частный учебно-воспитательный комплекс 'Авторская школа Бойко',спортивный комплекс 'TETRA', теннисный клуб 'Central Park' и центральный парк культуры и отдыха им. М.Горького.
Відео об'єкта
Об'єкти в цьому ЖК
Ціна: 50 000 $
ID 212-888-084
Ціна: 45 000 $
ID 212-908-989
Ціна: 88 000 $
ID 212-926-528
Ціна: 60 000 $
ID 212-934-071
Ціна: 53 000 $
ID 212-939-764
Ціна: 59 500 $
ID 212-976-164
Ціна: 97 000 $
ID 213-012-109
Ціна: 46 500 $
ID 213-021-859
Ціна: 85 000 $
ID 213-031-625
ID 213-031-641
Ціна: 83 000 $
ID 213-031-644
ID 213-031-687
















































