Продається квартира Надднепрянское шоссе, Київ, Голосіївський, м. Видубичі (№ 213-258-502)
Ціна: 96 000 $

Надднепрянское шоссе, Київ, Голосіївський, м. Видубичі
Характеристики
| Ціна: | 96 000 $ |
|---|---|
| № об'єкта: | 213-258-502 |
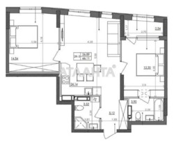
| Кімнат: | 2 см/рз |
| Поверх: | 7 / 20 ліфт |
| Площа: | 66 / - / 24 м2 |
| Санвузол: | 1 сумісний |
| Балкон: | балкон |
| Ремонт : | частичный ремонт |
| Год ремонта: | |
| Додатково: | новобудова |
Опис
2-кімнатна квартира. Голосіївський. Видубичі, ДО МЕТРО ВИДУБИЧІ 8 ХВИЛИН ПІШКИ!r r Двокімнатна квартира в ЖК комфорт класу Svitlo park. r Перша черга, другий будинок.r В квартирі майже закінчили ремонт.r Зроблена электрика, сантехніка,проложені траси під кондіціонери, теплі поли, положена вся плитка.r Дуже зручне планування.r Дві окремих кімнати,кухня-вітальня.засклена лоджія.r Два полноцінних санвузла (закуплені унітази, душкабіна, ванна).r Стіны підготовлені під поклейку обоів.r Встановлені підвіконня. r Залишилось положити ламінат в 2 кімнатах (27 м2), натянути стелі, вставити міжкімнатні двері, поклеіти обоі.r ТЕЛЕФОНУЙТЕ В ЗРУЧНИЙ ДЛЯ ВАС ЧАС! Можливе придбання в кредит за програмою ДМЖ





















