Продається квартира Надднепрянское шоссе, Київ, Голосіївський, м. Видубичі (№ 213-258-288)
Ціна: 75 900 $

Надднепрянское шоссе, Київ, Голосіївський, м. Видубичі
Характеристики
| Ціна: | 75 900 $ |
|---|---|
| № об'єкта: | 213-258-288 |
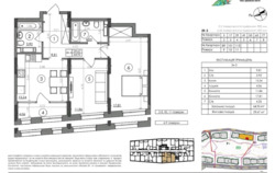
| Кімнат: | 2 |
| Поверх: | 11 / 24 ліфт |
| Площа: | 65 / - / 19 м2 |
| Санвузол: | 1 сумісний |
| Балкон: | балкон |
| Госпрограма : | єОселя и єВiдновлення |
| Ремонт : | строительное |
| Год ремонта: | |
| Додатково: | новобудова |
Опис
квартира в готовому будинку, можно відразу заходити на ремонт. Svitlopark новий ЖК біля Печерську Комфортний 11-й поверх, вікна в затишний, безпечний двір. ЖК Свитлопарк закритого типу, на території розвинена інфраструктура. Є супермаркет, НП, кафе, бари та багато іншого, постійно відкривається щось цікаве . До метро Видубичі 10 хвилин пішки від Світло парку Ціна у забудовника такої ж квартири на верхніх поверхах 91к$. Квартира підходить як для власного проживання, так і під орендний бізнес. Ділиться на 2 квартири, які будуть приносити власнику 1000-1100$ в місяць. Можно під єОселю, єВідновлення та інші державні програми.








