Резиденция

Жилой комплекс «Резиденция» в Харькове расположен в районе с прекрасной экологией, по адресу улица Новгородская, 46. 🏫Он находится в центре Шатиловки, рядом с Ботаническим садом.♨️⠀«Резиденция» – жилой комплекс, сооружаемый по монолитно-каркасной технологии, которая, по мнению специалистов, является самой прогрессивной из применяемых в строительстве. 💯⠀🔴 Застройщик 'Авантаж'⠀🔴Новострой представляет собой четырехсекционный десятиэтажный фешенебельный дом, возводящийся согласно уникальному архитектурному проекту. В ходе его строительства используются современные экологически безопасные материалы только наилучшего качества.⠀🔴Применение инновационных энергосберегающих технологий позволяет добиться снижения стоимости коммунальных услуг. При остеклении используются двухкамерные стеклопакеты. Подъезды оборудуются скоростными бесшумными лифтами.⠀🔴Планом застройки предусмотрено сооружение детской игровой площадки, благоустройство и озеленение придомовой территории.⠀🔴В окрестностях новостройки отсутствуют крупные промышленные предприятия. По соседству расположено несколько учебных заведений, детские сады, супермаркеты и торговые центры. До районной администрации не более трехсот метров. Неподалеку находится спортивный комплекс и стадион.⠀🔴Поблизости пролегают маршруты общественного транспорта, за десять-пятнадцать минут можно добраться до центра города, в пяти минутах ходьбы расположена станция метро «Научная».
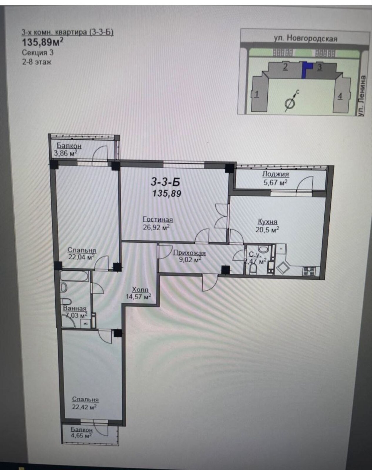
Об'єкти в цьому ЖК
Ціна: 189 000 $
ID 213-200-191
Ціна: 175 000 $
ID 213-200-200
Ціна: 180 000 $
ID 213-200-205
Ціна: 182 000 $
ID 213-200-216
Ціна: 79 000 $
ID 213-200-260
Ціна: 300 000 $
ID 213-213-417
Ціна: 175 000 $
ID 213-213-852
Ціна: 200 000 $
ID 213-230-610









































