Левада

Об'єкти в цьому ЖК

Ціна: 39 900 $
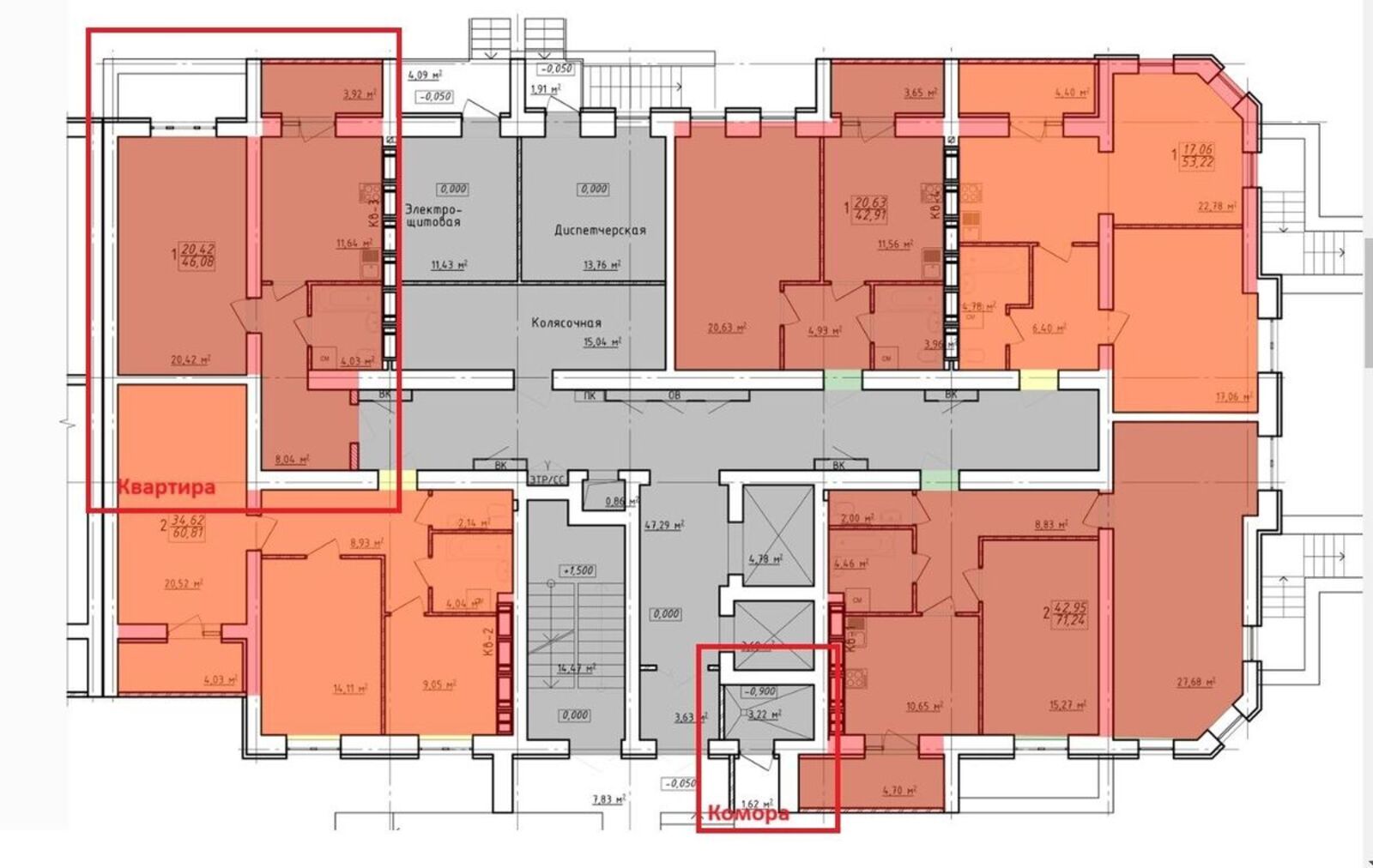
1
50 / - / 12 м2
1 / 9
ID 212-863-905

Об'єкт на карті

Замовити зворотній дзвінок