Головна >> Продаж квартир >> Об'єкт №213213678

Продам 3-комн квартиру ЖК Левада 2 (под чистовую обработку)  (№ 213-213-678)

Продам 3-комн квартиру ЖК Левада 2 (под чистовую обработку) фото 1

Ціна: 65 000 $

Характеристики

Ціна: 65 000 $
№ об'єкта: 213-213-678
Кімнат: 3 розд
Поверх: 10 / 14 ліфт
Площа: 71 / - / 13 м2
Санвузол: 1 сумісний
Балкон: лоджія
ЖК Харькова: ЖК Левада-2
Ремонт : Черновые работы
Год ремонта:
Додатково: новобудова

Адреса: Харківська, Харків, Основянський, ГАГАРИНА, ул.Заливная, 6, м. Левада

Сделаны ЧЕРНОВЫЕ работы!
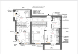
Продам эксклюзивную 3-комнатную квартиру (перепланировка) в новом жилом комплексе 'Левада 2', по адресу: ул. Заливная, 6. Дом сдан и заселен. Все документы на руках, без комиссии.
Выполнено: перепланировка, штукатурка, разведена электрика (схемы прилагаются), все сантехнические работы (вода+канализация, инсталляция), проложены магистрали в комнатах под кондиционеры, застеклена лоджия (окна Rehau), переделан выход на балкон, поменяны батареи на премиум класс (Royal Thermo), установлен счетчик отопления.
Квартира делалась для себя, работали с дизайнером (планировки прилагаются). Все материалы высокого качества.
Площадь составляет 71 кв. метр , включая 3 изолированные спальные комнаты, а также просторную кухню и санузел. Квартира расположена на 10-м этаже.
Дом сдан, заселен, все документы на руках. Рядом с комплексом хорошо развита инфраструктура! Идеальное местоположение обеспечивает вам легкий доступ ко всем необходимым удобствам и инфраструктуре города.

Об'єкт на карті

Замовити зворотній дзвінок