Продається квартира Харківська, Харків, Шевченківський, ПАВЛОВКА, Сухумская ул., 22, м. Держпром (№ 213-130-792)

Ціна: 48 000 $
Характеристики
| Ціна: | 48 000 $ |
|---|---|
| № об'єкта: | 213-130-792 |
| Кімнат: | 1 розд |
| Поверх: | 13 / 20 ліфт |
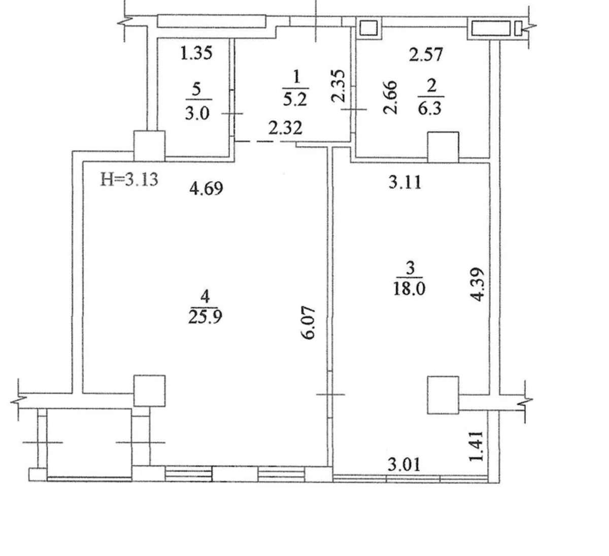
| Площа: | 58,4 / - / 18 м2 |
| Санвузол: | 2 роздільний + сумісний |
| Балкон: | балкон |
| Ремонт : | строительное |
| Год ремонта: | |
| Госпрограма : | єВiдновлення |
| Додатково: | новобудова |
Адреса: Харківська, Харків, Шевченківський, ПАВЛОВКА, Сухумская ул., 22, м. Держпром
Павловский квартал, лучшая планировка! Право собственности., Квартира в ЖК бизнес-класса 'Павловский квартал' от застройщика Жилстрой-2. Дом 2, секция 7. Комплекс полностью сдан. Оформлены документы о праве собственности, поэтому продажа может произойти по сертификату Є-відновлення или любой другой программе. Квартира светлая, солнечная, с панорамными окнами. Лучшая планировка. Сейчас это формат: просторная кухня-гостиная + отдельная спальня. А поскольку все внутренние перегородки не несущие и есть 3 окна, то её можно перепланировать в полноценную двухкомнатную, с двумя отдельными спальнями. Пример есть - приходите, поделимся идеями!

















