Головна >> Продаж квартир >> Об'єкт №213037018

У продажу 2 - кімнатна квартира з ремонтом в ЖК Архітекторів на Олексіївці  (№ 213-037-018)

У продажу 2 - кімнатна квартира з ремонтом в ЖК Архітекторів на Олексіївці фото 1

Ціна: 68 000 $

Характеристики

Ціна: 68 000 $
№ об'єкта: 213-037-018
Кімнат: 2 розд
Поверх: 3 / 6
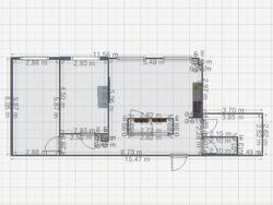
Площа: 75 / - / 22 м2
Санвузол: 2 сумісний
ЖК Харькова: ЖК Архитекторов
Ремонт : капремонт
Год ремонта:

Адреса: Харківська, Харків, Шевченківський, АЛЕКСЕЕВКА, Домостроительная ул., 5, м. Перемога

У продажу 2 - кімнатна квартира в ЖК Архітекторів на Олексіївці
Розташована на 3-му поверсі сучасного 6-поверхового будинку. Величезна кухня-гостьова 20 м2, дві окремі світлі кімнати** (15 м2 та 13 м2), два санвузли. Будинок утеплений і обладнаний сучасним великим ліфтом. Комунікації на найвищому рівні: опалення від ТЕЦ, кабельне телебачення, тощо. Ідеальна локація, усього в 10 хвилинах пішки — метро, поруч із будинком розташовані магазини, дитячі садочки, школи. Для любителів природи — ліс і озеро для прогулянок та активного відпочинку.

Об'єкт на карті

Замовити зворотній дзвінок