В продаже 2 - уровневая квартира в ЖК Павловский квартал Дом 2 Секция 7 (№ 212-936-732)

Ціна: 109 000 $
Характеристики
| Ціна: | 109 000 $ |
|---|---|
| № об'єкта: | 212-936-732 |
| Кімнат: | 4 розд |
| Поверх: | 19 / 20 ліфт |
| Площа: | 145 / - / 30 м2 |
| Санвузол: | 2 сумісний |
| Балкон: | балкон |
| ЖК Харькова: | ЖК Павловский Квартал |
| Ремонт : | строительное |
| Год ремонта: | |
| Додатково: | новобудова |
Адреса: Харківська, Харків, Шевченківський, ЦЕНТР, Сухумская ул., 22, м. Держпром
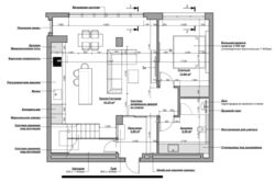
В продаже 2 - уровневая квартира в ЖК Павловский квартал Дом 2 Секция 7
Площадь: 145 м2. Этаж: 19-20/20. На этапе строительства сделана перепланировка: 1-й этаж: кухня-гостиная, спальня, санузел; 2-й этаж: 2 детские спальни, гардеробная и ванная комната. Квартира в строительном состоянии.











