Головна >> Продаж квартир >> Об'єкт №212794400

Продам квартиру 73м2(пiд чистові роботи)ЖК Радужний  (№ 212-794-400)

Продам квартиру 73м2(пiд чистові роботи)ЖК Радужний фото 1

Ціна: 55 000 $

Характеристики

Ціна: 55 000 $
№ об'єкта: 212-794-400
Кімнат: 2 розд
Поверх: 7 / 9 ліфт
Площа: 73 / - / 25 м2
Санвузол: 1 сумісний
Балкон: балкон
Ремонт : строительное
Год ремонта:
Додатково: новобудова

Адреса: Харківська, Харків, Немишлянський, НОВЫЕ ДОМА, Льва Ландау пр., 52Л, м. Палац спорту

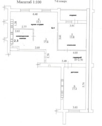
Продам квартиру 73м2(пiд чистові роботи)ЖК Радужний(Новi дома).Продам 2 кімнатну квартиру студiю у новобудівлі !
Будинок заселений., не торцева,дуже зручне розташування у середенi будинку,дуже гарне планування, все підготовлено під чистову обробку. Вишлю відео на вайбер.

Формат квартири: дуже простора кухня -студія (гостьова)25м2, спальня кімната 14м2,найгарніша дитяча кімната 17.5м2, велика вбиральня, поєднаний та просторий санвузол 6.5м2!
Квартира на 7 поверсі, що відкриває гарний вид з лоджії спальої кімнати і кухні-студії над 5ти поверховим паркінгом!

У комплектаціі житла:
-перепланування
-машинна штукатурка
-якісна стяжка підлоги 10см
-заливка стиків на стелі
-электропроводка з лічильником
-підігрів підлоги у ванній кімнаті
-теплолічильник Т330,радіатори, усі виходи під комунікації
-лiчильники води
-металопластикові вікна, застеклена лоджія, подвікіння, козирки та москитні сітки
-металеві вхідні двері.

Об'єкт на карті

Замовити зворотній дзвінок